top of page

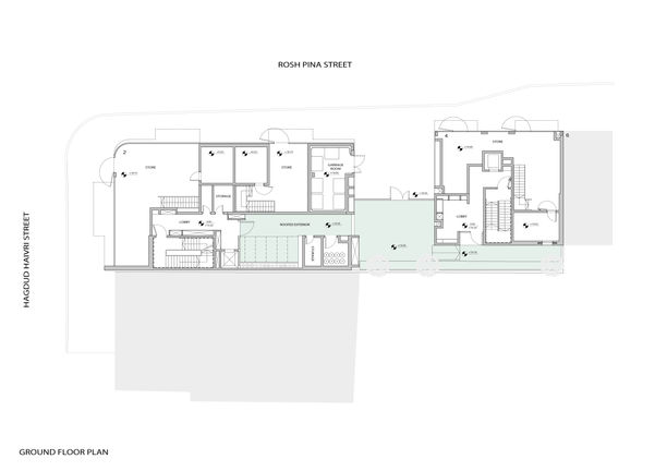
ראש פינה 2-4

בניין מגורים חדש

2016

תל אביב

2300 מ"ר

Before execution

תכנון למבנה מגורים חדש במתחם התחנה המרכזית.

©stability studio 2024 . Shadal St 7. Tel Aviv 6578111
  • Instagram
bottom of page